MAJA
Püünsis, väärikate tammepuude all, ootab uusi elanikke üks eriline kodu. See on paik, kus tekib tunne, et oled kohal, nimelt turvaliselt hoitud ja loodusega tasakaalus. Siin tekib paratamatult küsimus, kas valida tavaline kolmetoaline korter või neljatoaline maja, millel on oma imeilus aed, avar terrass ja väga mõistlikud kulud. Vastus kipub tulema iseenesest.
hubane maja ja läbimõeldud elukeskkond.
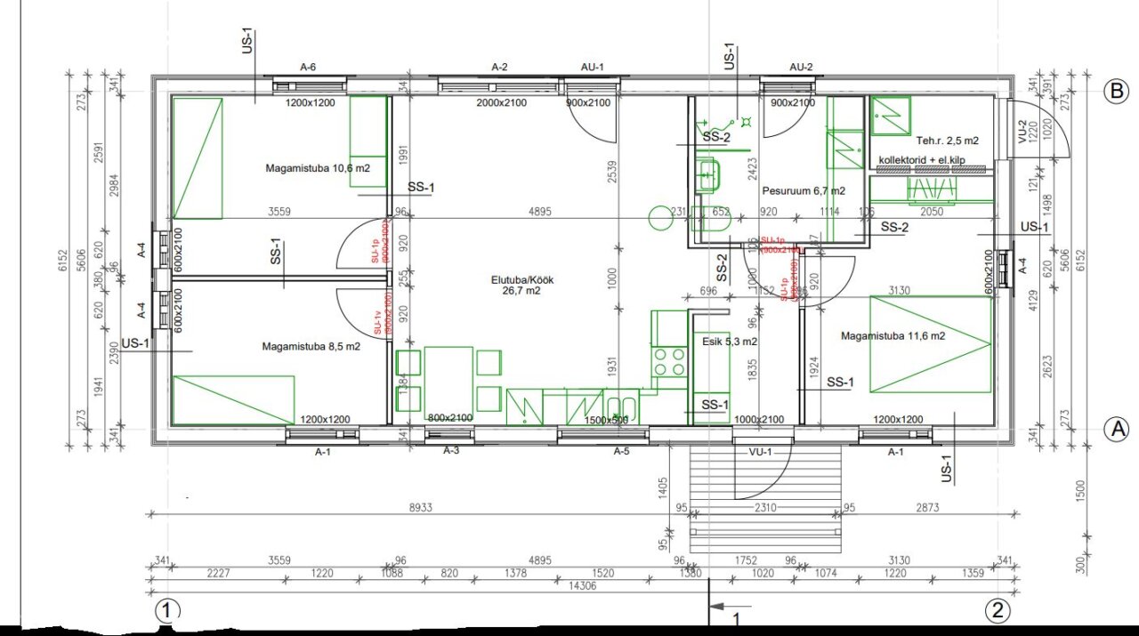
Üldpind koos terrassiga 120 m².
Maja sobib suurepäraselt neile, kes hindavad rahu, privaatsust ja kodusoojust. Nelja toaga planeering võimaldab mugavalt elada nii perel kui ka neil, kes vajavad töö- või külalistuba. Terrassil saab alustada hommikuid kohvitassiga ning lõpetada õhtuid päikeseloojangut nautides.
Naabruskond on rahulik ja sõbralik, seega on see kodu hea valik neile, kes soovivad turvalist ja vaikset elukeskkonda.
aed, mis rõõmustab kogu aasta vältel
Aed on hoolikalt planeeritud ja vajab vähest hoolt, kuid pakub see-eest rohkelt silmailu. Kevadel täitub aed sibullillede värviküllusega, suvel loovad meeleolu õitsev roosihekk ja rohelus. See on aed, mis ei nõua pidevat rasket tööd, vaid pakub rõõmu ja rahu.
AED
Maja juurde kuuluvad ka kuur ja kasvuhoone. Kasvuhoonet saab kasutada nii taimede kasvatamiseks kui ka mõnusaks puhkenurgaks, kus võtta vastu külalisi, nautida veini ja veeta suviseid õhtuid teistmoodi kui tavapärasel terrassil.
EHITAJA
Moodulmaja on ehitatud Akso Hausi tippkvaliteediga: ISO 9001 ja ISO 14001 sertifikaadid kvaliteedi- ning keskkonna haldusele, CE-märgis EL-i standarditele vastavuseks, 10-aastane konstruktsioonigarantiiga ning Inspecta järelevalve all toodetud. Maja valmis 2,5 kuuga kuivades tehase tingimustes – kiire, ilmastikukindel ja täpne ehitus. FI-garantii püstitus töödele täiendavaks kindluseks.
Patenteeritud tehnoloogia, minimaalsed vead ja keskkonnasõbralikkus – ideaalne Püünsi mereäärseks kliimaks.
KÕRVALKULUD
Maja ülalpidamiskulud on väga mõistlikud. Suvel jäävad need ligikaudu 80 euro juurde ning talvel umbes 150 euro kanti. Sooja tagab energiasäästlik Nibe õhk-vesi soojuspump ning värske ja puhas siseõhk on tagatud Valloxi sundventilatsiooni süsteemiga.
Turvalisuse eest hoolitsevad Paradoxi signalisatsioonisüsteem ning õue paigaldatud valvekaamerad, mis annavad meelerahu nii kodus olles kui ka ära viibides.
PERSPEKTIIV
Projekti järgi on aeda lubatud rajada kuni 20 m² suurune lisahoone, kuhu saab soovi korral ehitada näiteks sauna. Kõik tehase projektid ja joonised on korrektselt koondatud ning antakse majaga kaasa, mis teeb edasise planeerimise lihtsaks ja muretuks.
kodu, mis ootab uusi lugusid.
Võimalik paigaldada kamin!
LISAINFO
See armas maja Püünsis ei ole lihtsalt kinnisvara, vaid paik, kus saab luua mälestusi, võtta aega iseendale ja nautida elu rahulikumas rütmis. Kui otsid kodu, mis pakub rohkem kui tavaline korter ning kus iga detail on läbi mõeldud, siis see maja ja aed ootavad just Sind.
