KLIENDIPÄEV 12.aprillil kell 16:00-17:00
VAJALIK EELNEV REGISTREERIMINE TEL. VÕI E-MAILI TEEL!
* igale kliendile võimaldatakse eraldi ajavahemik objektiga tutvumiseks
ÜHEKORDNE MAJA TERRASSI JA AIAGA VÄÄNA-JÕESUUS
MAJA
Müüa kaasaegne ühekorruseline puitkarkassmaja rahulikus ja rohelises Vääna-Jõesuu piirkonnas – vaid mõne minuti autosõidu kaugusel merest.
Maja on ehitatud mugavust ja funktsionaalsust silmas pidades ning sobib nii püsivaks elamiseks kui ka suvekoduks.
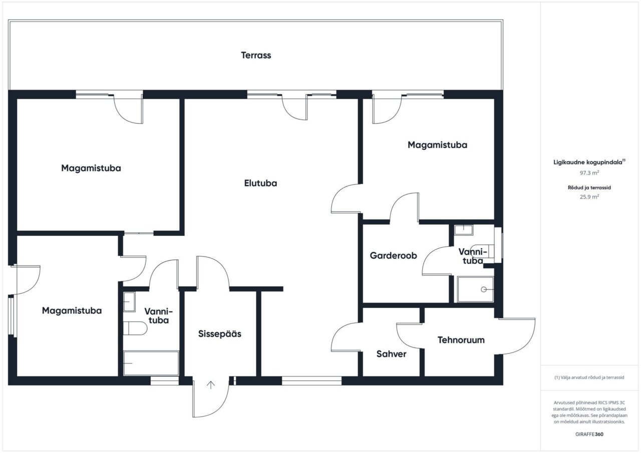
Elamispind on 97.2 m², lisaks 25.9 m² suurune terrass päikeselisel lõunapoolsel küljel.
Planeering on läbimõeldud ja praktiline:
– avatud köögiga elutuba, kust pääseb terrassile;
– kolm magamistuba (kahest pääs terrassile);
– walk-in garderoob;
– kaks sanitaarruumi – ühes dušš, teises vann;
– esik, abiruum ja tehnoruum.
Tubades põrandal on puitparkett, köögis, esikus ja sanitaarruumides on keraamiline plaat. Küte – õhk-vesi soojuspump, mis tagab energiatõhusa ja mugava sisekliima aastaringselt. Ühendatud on tsentraalne vesi ja kanalisatsioon ning elektriliitumine 3*25A, mis võimaldab kasutada kõiki koduseid seadmeid ja küttesüsteemi ilma piiranguteta.
KRUNT JA TERRITOORIUM
Maja asub hoolitsetud ja ilusal krundil, kus kõik on läbi mõeldud mugavaks eluks ja puhkuseks. Lõunapoolne terrass on ideaalne koht perega aja veetmiseks, hommikukohvi nautimiseks, grillimiseks sõpradega või lihtsalt värskes õhus puhkamiseks. Krundil asub kuur, mida saab kasutada hoiuruumina või soovi korral lammutada ja ehitada asemele saun.
Maja kõrval on ruumikas parkimiskoht ühe auto jaoks.
ASUKOHT JA ÜMBRUS
Viti asub rahulikus ja rohelises Harku valla piirkonnas, vahetult Vääna-Jõesuu kõrval. See on koht, kus linnamüra jääb selja taha ning igapäevaelu kulgeb rahulikus tempos, looduse keskel.
Vääna-Jõesuu lasteaed ja kool jäävad umbes 5–7-minutilise autosõidu kaugusele, mistõttu on piirkond eriti sobiv lastega peredele. Kaunis liivarand, metsarajad ja meri on vaid 5–10 minuti kaugusel — ideaalne nii jalutuskäikudeks kui ka suviseks puhkuseks.
Tallinna kesklinna jõuab autoga ligikaudu 30 minutiga, mis teeb asukoha mugavaks ka neile, kes töötavad linnas, kuid soovivad elada rahulikumas ja rohelisemas keskkonnas.
LISAINFO
Kui otsid avarat ja looduslähedast kodu, kus on ruumi nii perele kui ka külalistele, võib see palkmaja olla just sinu jaoks.
Võta ühendust ja tule vaatama!
