KORTER
Ridaelamu tüüpi suur elupind oma privaatse sissepääsuga asub Luha tn kortermaja siseõue poolsel küljel. Tänavamüra siia ei kostu. Mõlemale poole maja avanevad aknad loovad valgusküllase meeleolu terve päeva jooksul. Läbi kolme korruse paiknev korter on renoveeritud umbes 15 aasta eest. Vahetatud on kõik vee- ja kanalitorustikud, uuendatud elektrilahendus ja küttesüsteem. Paigaldatud on kvaliteetsed kolmekordse paketiga aknad, mis hoiavad sooja ja on kõrgendatud helipidavusega. Hoone välisfassaadid on hiljuti renoveeritud ning õueala poolsed fassaadid koos keskse haljasalaga on plaanis lähiajal samuti uuendada. Sisefassaad saab heleda värvilahenduse, rõdudele paigaldatakse uued klaasid ning õueala sissepääsu müüritis asendatakse moodsa klaaspiirdega. Vt näidis fotokavand
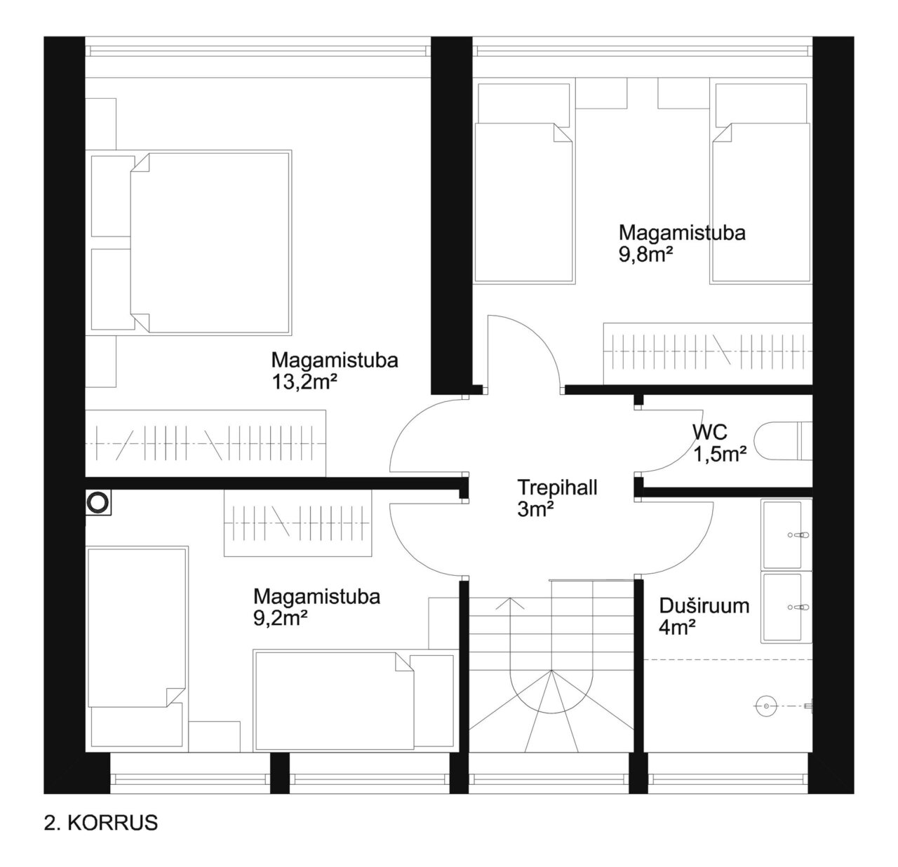
Korteri sissepääsu korrusel asub suur elutuba koos köögialaga, ning esik koos integreeritud gardoobiga ja eraldiasuva väikse tualettruumiga. Soklikorrusel asub üks magamistuba, mille võib kohandada näiteks jõusaaliks. Lisaks asuvad siin avarad saunaruumid, eraldiasuv tualettruum ning majandusruum pesumasinatega. Ülakorrusele jäävad kolm magamistuba ning eraldiasuvad duširuum ja WC. Sisetrepp on õhulise konstruktsiooniga ning lihvitud paeplaadist astmetega.
Põhikorruse ja soklikorruse ruumide põrandatel on must kiviplaat, ülakorruse tubades on maas tammeparkett. Siseuste viimistlus on kombineeritud tammespooni ja mattklaasiga. Kõigi sanruumide põrandatel on elektriline mugavusküte, mis tagab sooja jalgealuse aastaringselt. Korter on olnud kasutusel Air BNB üüripinnana ja on vastavalt sisustatud. Kogu nähaolev mööbel ja sisustus sisalduvad müügihinnas.
KÜTE
Korteri küttelahendusena on kasutusel autonoomne vesi-õhk tüüpi soojuspump, mis võimaldab oma kütteperioodi pikkust ise reguleerida. Radiaatorid on varustatud termostaadiga.
MAJA | PARKIMINE| PANIPAIK
Luha 16 hoone on terviklikult rekonstrueeritud ja arendatud korteriteks aastal 2005 Rime Kinnisvara poolt. Korteriühistu on väga tegus ning kannab maja eest hoolt. Kõik senitehtud tööd on teostatud remondifondi baasil ja majal laenukohustused puuduvad. Majal on videovalve. Keldrikorrusel on võimalik jalgrattaid hoiustada seinastangede küljes. Eraldi panipaiga ruum sellel korteril puudub.
Territooriumi autoväravad on avatavad telefoniga. Müüdava korteri juurde kuulub 1 kindel parkimiskoht territooriumil. Sisehoovis on ka laste mänguala liivakasti ning kiigega.
ÜMBRUS | TRANSPORT
Maja asukoht sobib ideaalselt kesklinna lähedust hindavale inimesele, samas on Uus Maailma elupiirkond väga privaatne ja rahulik. Ümbruses on palju parke ning kõrghaljastust. Lähim suurem toidupood on Kristiine Keskus, aga lähitänavatel asub ka väiksemaid kaupluseid nagu Grossi pood ja samuti mitmeid toredaid kohvikuid. Ühistranspordi peatused mõneminutise jalutuskäigu kaugusel.
LISAINFO
Helista – kõik lisaküsimused on teretulnud. Oled oodatud selle koduga tutvuma!
