Müüa 2025. aastal valminud kvaliteetne üksikelamu rahulikus ja rohelises Hüüru külas, aadressil Marju tn 7. Tegemist on majaga, mis on ehitatud endale– kasutatud on vaid kvaliteetseid ja hoolikalt valitud ehitus- ning viimistlusmaterjale ning läbi mõeldud tehnilisi lahendusi.
ÜLDINFO
Hoone kasutusotstarve: üksikelamu
Valmimisaasta: 2025
Energiaklass: B
Korruseid: 1
Tubade arv: 5
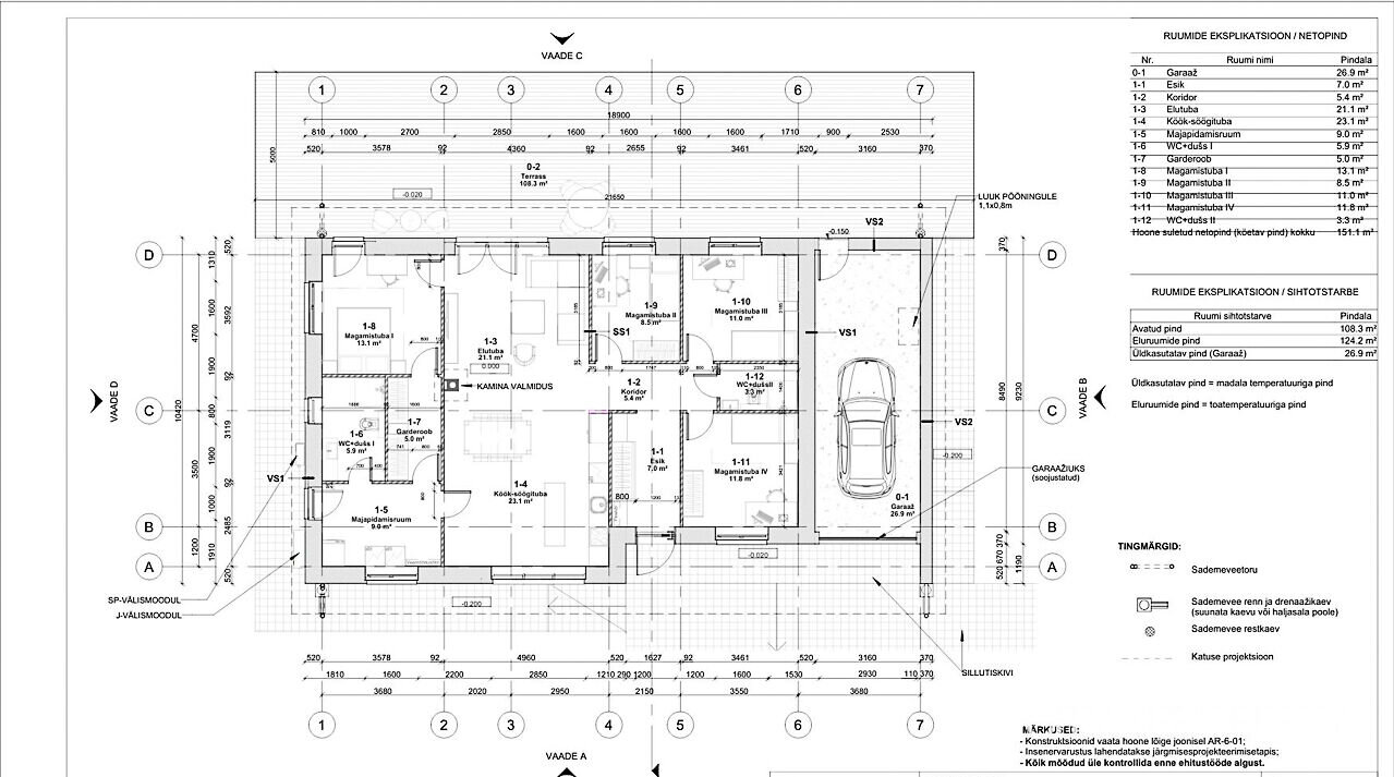
Üldpind: 151,1 m²
Köetav pind / eluruumide pind: 124,2 m²
Garaaž: 26,9 m²
Krunt: piirdeaed rajatud
RUUMILAHENDUS
Maja planeering on funktsionaalne ja avar, sobides suurepäraselt pereeluks.
Garaaž – 26,9 m²
Esik – 7,0 m²
Koridor – 5,4 m²
Elutuba – 21,1 m²
Köök-söögituba – 23,1 m²
Majapidamisruum – 9,0 m²
WC + dušš – 5,9 m²
Garderoob – 5,0 m²
Magamistuba I – 13,1 m²
Magamistuba II – 8,5 m²
Magamistuba III – 11,0 m²
Magamistuba IV – 11,8 m²
WC + dušš – 3,3 m²
EHITUS JA VIIMISTLUS
Traditsiooniline arhitektuur, viilkatus (kalle 20).
Välisviimistlus: ilmastikukindel krohv, krohvitud sokkel.
Katusekate: katuseplekk.
Aknad: Plasto.
Põrandad: Parador tamm, valge lakk.
Siseuksed: Jeld-Wen Manteluks Stable 40.
Köök: IKEA VoxTorp, täistamme liimpuidust töötasapind.
TEHNILISED LAHENDUSED
Elekter: 3×25 A
Küte: õhk-vesi soojuspump (DAIKIN), vesipõrandaküte kogu majas.
Märgruumides lisaks elektripõrandaküte.
Kaminavalmidus elutoas (moodulkorsten).
Ventilatsioon: soojustagastusega mehaaniline sissepuhke- ja väljatõmbesüsteem (Comfovent Domekt C6M).
Jahutus: igas toas paigaldatud kompressorjahutus (Midea).
Garaaž: suletud ja köetav.
LISAVÄÄRTUSED:
Majja on paigaldatud kvaliteetne kohtpaikne mööbel väärtuses ca 15 000 €, rajatud kivitee maksumusega ca 20 000 € ning ehitatud piirdeaed väärtuses ca 10 000 €. Kõik nimetatud lahendused suurendavad oluliselt kinnistu funktsionaalsust ja üldist väärtust.
ASUKOHT JA ÜMBRUS
Hüüru küla asub hinnatud ja kiiresti arenevas piirkonnas, pakkudes ideaalset tasakaalu loodusläheduse ja hea ühenduse vahel Tallinnaga.
Tallinna kesklinn ca 15–20 min autosõitu.
Kiire ühendus Tallinna ringtee ja Paldiski maanteega.
Läheduses ühistransport (buss ja rong).
Hüüru ja Saue piirkonnas olemas koolid, lasteaiad, poed ja teenused.
Turvaline ja vaikne elukeskkond, sobiv perele.
MIKS SEE MAJA?
Uus, koheselt sissekolimiseks valmis
Ehitatud enda perele, mitte kompromissidega arenduseks
Väga hea energiatõhusus ja madalad ülalpidamiskulud
Rahulik elukeskkond, samas kiire ühendus linnaga
Kvaliteetne tehnika ja läbimõeldud ruumilahendus
LISAINFO
Huvi korral võta ühendust ja tule majaga tutvuma – see on kodu, mis väärib nägemist!
