Müügile on tulnud Ämari aleviku peamajandushoone üldpinnaga 1316.9 m2. Varasemalt asusid seal rahvamaja, kinosaal, spordikompleks, baar, saun, abiruumid ja kaks kauplust.
Üks kauplustest on majas tegutsenud aastakümneid tänaseni,mis toob omanikele tänaseni stabiilse sissetuleku.
Kinnistu pindala on 1980 m2.
MAJANDUSHOONE
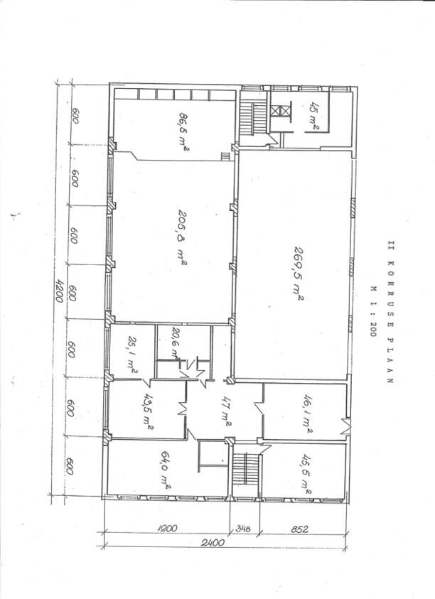
-Suletud netopind on 1530,9 m2.
-Ehitisealune pind on 1178.0 m2.
-Maapealsete korruste arv: 2.
-Maa-aluste korruste arv: 1.
-Vundamendi liik – madalvundament.
-Kande- ja jäigastavate konstruktsioonid – tellis.
-Välisseina liik – tellis, väikeplokk.
-Vahelagede kandva osa materjal – monteeritav raudbetoon.
-Katuse ja katuselagede kandva osa materjal – monteeritav raudbetoon.
-Katusekatte materjal – rullmaterjal.
-Elektrisüsteemi liik – võrk.
-Veevarustuse liik – tsentraalne.
-Kanalisatsiooni liik – tsentraalne.
-Elekter on kolmefaasiline peakaitsmega 32A.
Hoonel on mitu sissepääsu, mistõttu on võimalik iga majaosa eraldi välja üürida või müüa.
OBJEKT
-Mitmeotstarbeline hoone – ideaalne erinevate äriprojektide elluviimiseks. Varem on siin edukalt tegutsenud spordisaal, kino, raamatukogu ja vabaajakeskus.
-Tegutsev äri – hoone ühes osas asub populaarne toidupood, millel on kehtivad tegevusload ja püsiv kliendibaas kohalike elanike seas.
-Hästi välja arendatud infrastruktuur – hoone on varustatud vajalike kommunikatsioonidega, sealhulgas tsentraalne vesi, elekter ja kanalisatsioon.
INVESTEERINGU VAADE
-Uute töökohtade loomine – infrastruktuuri ja tööstuse areng meelitab piirkonda spetsialiste ja ettevõtjaid, suurendades nõudlust äripindade, kaupluste ja teenindusettevõtete järele.
-IT-sektori arenguvõimalused – piirkond tõmbab ligi kõrge kvalifikatsiooniga spetsialiste, sealhulgas IT-eksperte ja insenere, mis muudab selle ideaalseks kohaks koostöötamiskeskuste, ärikeskuste ja koolitusasutuste jaoks.
-Lähedus turismiobjektidele – vaid 7 km kaugusel Ämarist asub tuntud Rummu Sinine Laguun, mis on üks Eesti kaunimaid ja populaarsemaid turismisihtkohti. See looduslik ime koos ujumiskohtade, sukeldumise ja aktiivse puhkuse võimalustega meelitab külastajaid üle kogu maailma, avades suured võimalused turisminduse, hotellinduse ja toitlustuse sektoris.
VÕIMALIKUD KASUTUSVÕIMALUSED
– Spordikeskus või wellness-klubi – olemasoleva spordisaali taastamine ja kaasaegse tervisekeskuse rajamine.
– Koostöötamiskeskus või IT-hub – kontoripinnad, coworking-ruumid, start-up’ide ja rahvusvaheliste spetsialistide jaoks mõeldud tööalad.
– Meditsiinikeskus või erahaigla – vajalik ja nõutud teenus kasvava elanikkonna ja spetsialistide jaoks.
– Meelelahutuskeskus – kino, laste mängukeskus või kultuurikeskus.
– Hotell või korterid üürile andmiseks – suurepärane investeering piirkonna turismipotentsiaali arvestades.
– Restoran, kohvik või gurmeepood – teenindada nii kohalikke elanikke kui ka turiste.
TRANSPORT JA ÜMBRUSKOND
Bussipeatus on maja juures. Väga hea transpordiühenus Keila ja Tallinnaga – iga tund.
Lähedal asuvad Rummu karjäär, Paekalda puhkekeskus, Padise klooster, Vasalemma alevik ja jõgi.
Ämari alevikus asub tuntud sõjaväe lennuväli.
LISAINFO
Arvestades strateegilist asukohta ja kiiret arengut, on see objekt ideaalne investeerimisvõimalus!
Võta ühendust telefoni või e-maili teel ja lepime kokku vaatamise aja.
