MAJA
Müügile on tulnud kena eramu hinnatud peresõbralikus piirkonnas, Tabasalus.
Maja on 1-korruseline, ehitatud 2003.ndal aastal Merko ehituse poolt.
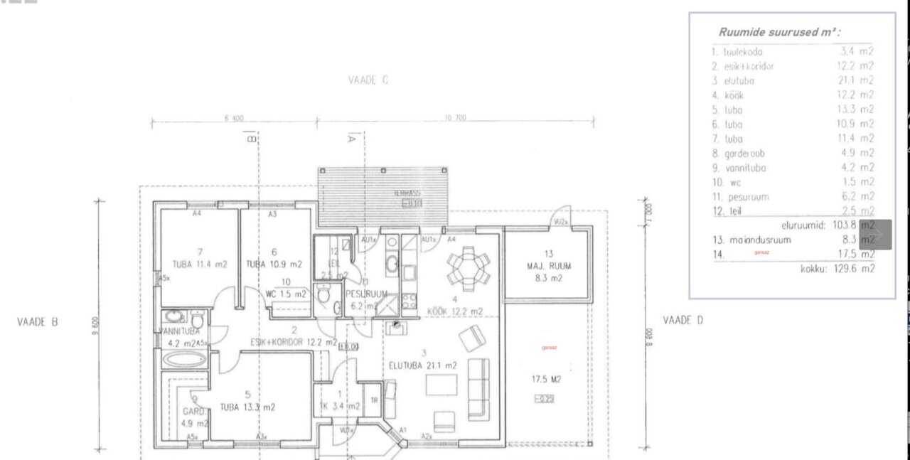
Maja üldpind on 129.6 m², suletud netopind on kokku 112.1 m² – ning selle koosseisu kuuluvad:
Tuulekoda, esik ja koridor, elutuba, avatud köök, 3 eraldi magamistuba, vannituba ja tualett, eraldi tualett, saun ja duširuum.
Eraldi panipaik ja garaaž pääsuga õuest.
Tegemist on äärmiselt hubase koduga, mida ümbritseb kaunilt haljastatud aed.
Kodu südameks on avar elutuba koos soojust salvestava kaminaga, mis loob sügis-talvistel õhtutel mõnusa meeleolu ning on lisaks ka täisväärtuslik kütteallikas.
Suured aknad elutoas annavad valgust ja avarust.
Köögi poolele mahub suur söögilaud, et pere ja külalistega meeldivalt aega veeta. Köögist pääseb otse ka maja taha terrassile, mis on suvel tore elutoa pikendus.
Majas on 3 eraldi magamistuba. Suuremas magamistoas on ka mahukas walk-in garderoob mugavaks asjade hoiustamiseks.
Kaks vannituba teevad elu ka suurema perega mugavaks. Ühes on olemas vann, teises dušš ja saun.
Saunaruumist pääseb otse õue ennast jahutama. Ideaalne ka talvlistel saunaõhtutel terrassilt hange hüpata.
Vannitoas on olemas pesumasin ja kuivati mis soovi korral võivad jääda ostjale.
HOOV | PARKIMINE | PANIPAIK
Krundi pind on 903 m² ning see on igast küljest piiratud privaatsust pakkuva hekiga.
Avar ja päikeseline hooviala on kaunilt haljastatud.
Terrassi on laiendatud ning merepoolsele küljele on paigaldatud tuulevari. Loodud on mõnus katusealune tuulevaikne istumisnurk, kus pere ja sõpradega aega veeta.
* Majal on lisaväärtusena garaaž, mis on olnud kasutuses rohkem koduse treeningsaali ja panipaigana.
* Parkimiseks on maja hoovis ruumi kahele autole garaaži ees.
* Majas on eraldi panipaik/kuur mugavaks asjade hoiustamiseks.
* Maja kõrval on väike aiamaja/puukuur – kaminapuude hoiustamiseks.
TEHNILISED ANDMED
Maja on kombineeritud küttega.
Kütteallikateks on paar aastat tagasi paigaldatud uued elektrilised õliradiaatorid (uuendatud on kogu maja radiaatorid v.a 1 radiaator elutoa akna all)
Lisa kütteallikaks on kasutusel soojust salvestav kamin-ahi.
Esikus, vannitoas, saunas el. põrandaküte.
Hoone on betoonist plaatvundamendil, hoone kandekonstruktsioonideks on toodetavad termoprofiilkarkassiga seinapaneelid.
Maja fassaad sai 4a tagasi värvivärskenduse.
ÜMBRUS | TRANSPORT
Tabasalu on rahulik looduskaunis piirkond perede seas, kes hindavad mere ja looduse lähedust, kuid soovivad nautida ka linnaelu mugavust.
Tabsalu keskuses on kõik eluks vajalik olemas. Hinnatud kaasaegne elukeskkond Tallinna külje all.
Mugavalt lähedal on lasteaed, kool, välijõusaal ning korvpalliväljak õues aja veetmiseks, spordikompleks ning erinevad söögikohad, perearstikeskus.Tabasalu keskuses on 24/7 fitness spordiklubi ning toidupood Selver, läheduses lisaks Rimi, Gurmeepood, ilusalongid jpm.
Üle tee asub uus Tiskre Prisma ning jalutuskäigu kaugusel Lucca restoran.
Lähedal busspeatused Keskpäeva tee, Kallaste, Tiskre.
LISAINFO
Helista/ kirjuta ja küsi lisa, oled väga oodatud selle kauni koduga tutvuma!
