VÕTA JULGESTI ÜHENDUST JA TULE KORTERIGA TUTVUMA!
NB! VAATA KA VIRTUAALTUURI KORTERIST!
KORTER
Müügile on tulnud avar ja valgusküllane läbi kahe korruse ulatuva planeeringuga ainulaadne 4-toaline perekorter Viimsis, Haabneeme südames Kaluri teel. Korter asub kortermaja 4. ja 5. korrusel ja selle akendest avanevad ilusad vaated ümbrusele. See kaunis ja hubane kodu sobib just Sinu perele, kui hindad linnaelu mugavusi, aga samas rahulikku ning looduslähedast elukeskkonda. Korter on vaba, ootab oma peret ja on sissekolimiseks valmis. Kõik eluks vajalik ja palju enamgi asub selle kodu lähiümbruses. Kaluri tee viib otse Haabneeme randa, mis jääb kõigest ca 800m kaugusele.
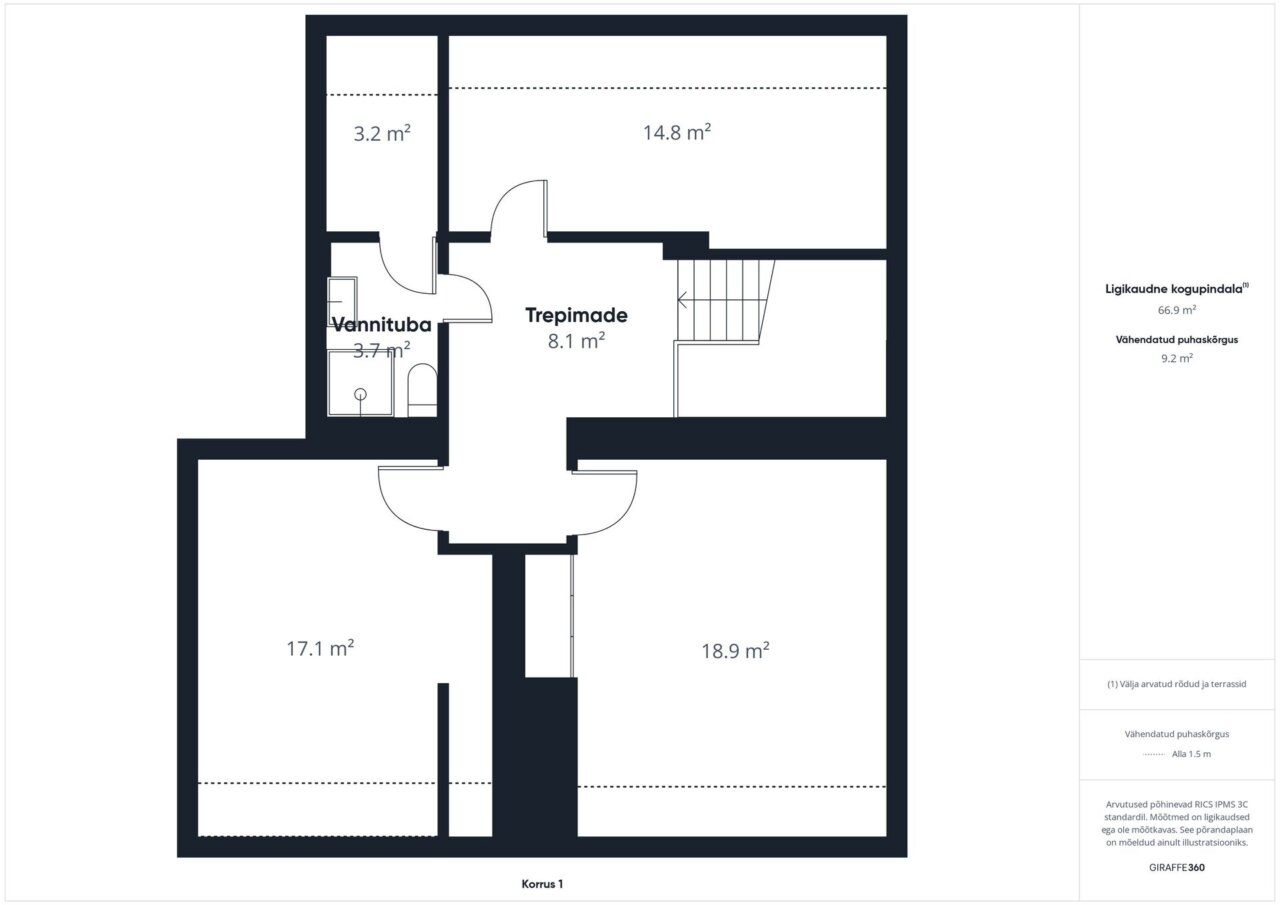
Eluruumi köetav pind on 90,9m². Korter on ehitatud juurdeehitusena majale 2000-ndate alguses, ehitusluba on väljastatud 2004. aastal ja kasutusluba 2005.aastal.
Kogu korter on 2020.a. värskendatud, ning samal aastal on paigaldatud ka uus köögimööbel.
Magamistubade katuseaknad on hiljuti vahetatud uute Roto (3*klaaspakett) vastu, akendel on Roto originaalprofiilid ja pimendavad siserulood.
Korteri sisekujunduses on kasutatud valdavalt heledaid ja looduslähedasi värvitoone. Ruumide seinad on kaetud tapeediga ja põrandaid katab laminaatparkett. Pesuruumi ja wc põrandad ning seinad on plaaditud.
Korteri koosseisu kuulub esik, panipaik/garderoob, avar elutuba koos eraldi asetseva kööginurgaga, mugav trepp, mis viib ülemisel korrusel asuvasse trepihalli, 3 magamistuba, millest kahes on mahukas garderoob, wc/duširuum, saun.
Köök on sisustatud kvaliteetse eritellimusel valmistatud köögimööbli ja tehnikaga (elektripliit, elektriahi, õhupuhasti, mikrolaineahi, nõudepesumasin, külmik).
Elutuba ja kööki eraldab suur söögilaud koos 4 tooliga. Valgusküllane ja avar elutuba on selle kodu südameks, kus pere ja sõpradega koos olemist nautida. Lisaks mõnusale atmosfäärile loob hubasust ning pakub silmailu elektrikamin.
*Korter müüakse soovi korral koos suurema osa piltidel nähtava mööbli ja sisustusega.
* Korteri kasutada on panipaik maja esimesel korrusel. Lisaks on väike panipaik ka korteris.
SAUN
Saunamõnude nautijatele on korteri teisel korrusel elektrikerisega saun, mis on piisavalt suur ja mahutab soovi korral kogu pere koos leili nautima.
KÜTE
Selle korteri kütteallikaks on korteripõhised kaasaegsed reguleeritavad ja ökonoomselt toimivad elektriradiaatorid Mill. Tänu korteripõhisele küttesüsteemile hoiad oma küttearved kontrolli all, ning saad vastavalt oma pere soovidele ja vajadustele radiaatoreid tubade kaupa reguleerida. Elektripaketi saad valida oma soovi kohaselt. Lähiajal vahetatakse majas olevad elektriarvestid kaugloetavate vastu, mida korraldab ja rahastab korteriühistu. Kortermaja alumiste korruste korterites on kaugküte, aga ülemistel korrustel on eraldi autonoomne küttesüsteem.
*Soovi korral on lisaks võimalus korterisse paigaldada õhksoojuspump, mida saaks kasutada nii kütte- , kui ka jahutusseadmena. Luba selleks on korteriühistust olemas.
*Esimese korruse wc-s ja teise korruse duširuumis on elektriline põrandaküte.
*Esimesel korrusel asuv elektrikamin annab soovi korral ka sooja.
MAJA/PARKIMINE
Kortermaja on ehitatud 1974. aastal. Majas elavad sõbralikud naabrid ja toimetab aktiivne korteriühistu. Maja vee- ja kanalisatsioonitorustikud on vahetatud, renoveeritud on trepikojad. Hoone on hästi hooldatud ja turvaline. Korteriühistul puuduvad laenud.
*Parkimine kortermaja juures on majaelanikele tasuta, igale korterile üks parkimiskoht. Lisaks on pere teist autot või külalistel võimalik parkida maja teisel pool, Mereranna tänaval asuvas uues avaras parklas.
ASUKOHT/TRANSPORT
Haabneeme on kiiresti arenev hinnatud elupaik Tallinna piiril, Viimsi südames. Selles suurepärases asukohas on ühendatud kaunis loodus ning linnale omane infrastruktuur. Kõik vajalik jääb sellest kodust kuni 10 minuti jalutuskäigu kaugusele. Haabneemes on olemas palju võimalusi sportimiseks (MY Fitness, Golden Club, Viimsi staadion, suusarajad, Lubja suusanõlv, Haabneeme matkarajad jpm.), vaba aja veetmiseks või pere ja sõpradega nautimiseks (söögikohad- Oko, Chi, Vapiano, Sushiplaza, Grand Rose pubi jne., Viimsi kino, spaad- SPA Viimsi, Tervis ja veepark Atlantis H2O, kultuurikeskus Artium jpm.), toidukauplused (Selver, Rimi, Maxima, Grossi, Coop, Delice). Piirkonnas on olemas kaasaegsed koolid ja lasteaiad (Viimsi Gümnaasium, Haabneeme kool, Viimsi kool, Karulaugu lasteaed, Päikeseratta lasteaed, Astri lasteaed, Tiki-Triki eralasteaed, Viimsi lasteaed jne.)
Ühistranspordi peatused asuvad mõne minuti jalutuskäigu kaugusel, mis tagab mugava ja kiire ühenduse Tallinna kesklinna ja teiste linnaosadega.
LISAINFO
Võta julgesti ühendust, oled väga oodatud selle hubase koduga tutvuma!
